Building Transformation
In the Fall of 2015 our church formed a Long-Range Planning Facilities Team to help us assess our current facilities and to help formulate a long-range plan to guide our decision making in the future.
June 13, 2018 Presentation
After two and a half years of work, the team made an initial presentation to our congregation at our Quarterly Business Meeting in June 2018. A video of that presentation is below:
A Summary of the Proposal...
The guiding principles as we seek to upgrade and improve our current facilities include:
All of these principles are ways that we can be good stewards of that which God has entrusted to our care.
Our current facility is comprised of four interconnected buildings that we label A, B, C, and D (from newest to oldest). [click for a map of our current facilities labeled by letter] We knew from the outset that Building D presented numerous challenges and ultimately needed to be demolished, but we did not realize how intertwined Building D is with Building C. After extensive research and conversation with our architects we have determined that attempting to salvage Building C is not feasible. It would be more cost effective to tear down both of those buildings and build new space than it would be to attempt to salvage Building C and subsequently bring it up to code.
Building B [The Edwards Building] is structurally sound, but is in need of renovation in order to make better use of the space. That is where the initial work would begin as outlined below:

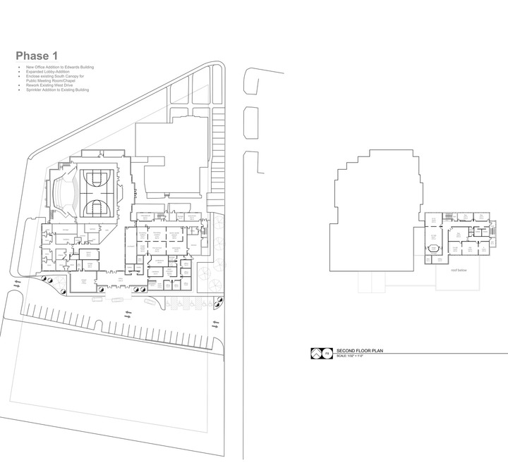
phase 1
[Scroll down for a larger version of the plans for Phase 1.]
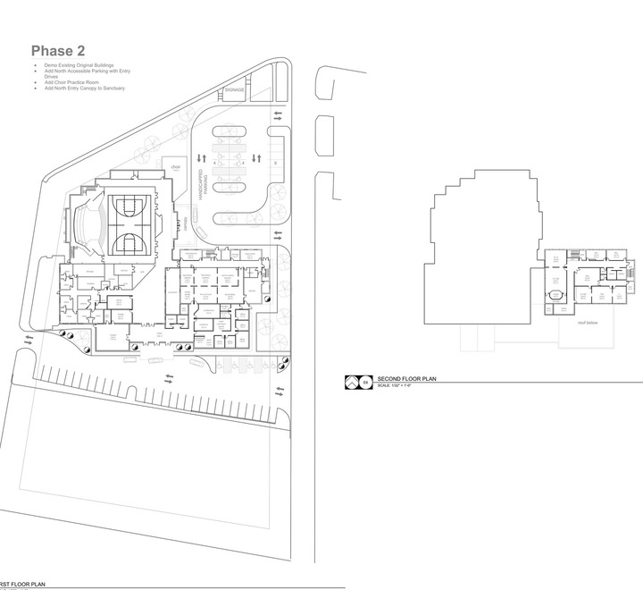
phase 2
[Scroll down for a larger version of the plans for Phase 2.]

Memorial Baptist Church | 1634 Paris Road | Columbia MO 65201 | 573.443.1408 | office@memorialbaptist.org